This is a major undertaking for us and we need to raise sufficient funds.
Great News! As of June 30, 2025, we have raised enough money to begin construction Phase One, The current plan is to break ground in the summer of 2026. Thank you to everyone who has donated so generously! We are now half-way there, let's keep going!
It's hard to believe, but the building that the current kitchen is in is now approaching fifty years of service. Pretty good considered it was put up in the mid 1970's as a temporary building! It is showing its age and there are major structural problems that cannot be fixed. It is also too small.

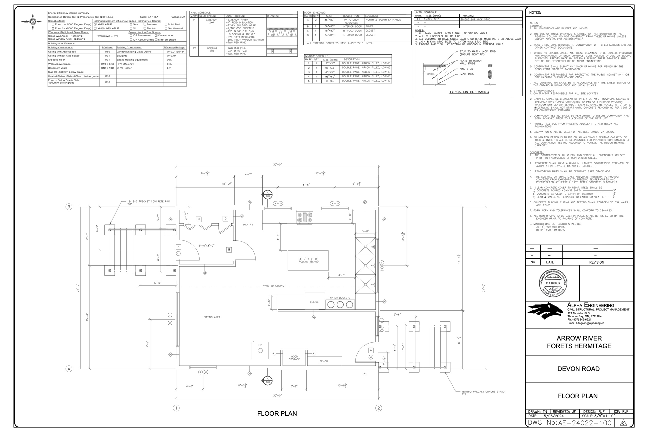
The new building will be located closer to the well and the road. We are planning on 30' x 24' footprint and will include a solid foundation, solar power and an area for dining. It will accommodate more people both in the working and dining areas. A carefully planned spacious kitchen will make the work of the cooks much easier.
We are hoping to have the new facility completed by the summer of 2025.
You can help by donating any amount, large or small to this much needed improvement. Go to our donation page for details about your options. Please specify that your gift in intended for the "New Kitchen Project." Thanks.